Project Citadel
Address : - Jiban Ratan Dhar Road, Near 1 No. Airport Gate |
Location
At Jiban Ratan Dhar Road near Airport 1 no. gate Indira Gandhi School . A good residential Place . Enjoys good connectivity with the rest of Kolkata . Has convenient facilities such as Markets, School, Bank, ATM . Will Finish by marble . Jossore road 5 mints by walking . |
| Completion Time : - ----. |
|
|
SPECIFICATION : -
- NATURE OF CONSTRUCTION : - R.C.C. Column , structure , inside will be finished by cement plaster with of Paris.
- FLOORING AND DADO :- All bed rooms , drawing rooms , living rooms , and balcony will be of marbles / vitrified tiles . Toilet will be of marble / tiles . Kitchen will be with marble and Stair case will be of marble with 4” skirting on all side with marble .
- DOORS : - All door frames made of seasoned wood . Main door and inside will be provided of flush door with sun mica . Locks of stainless steel on the main door . Standard quality stainless steel hinges , tower bolt will be fitted .
- WINDOWS : - Fully glazed aluminum sliding widow fitted with Glass and M.S. Grill fitted on the outer side .
- KITCHEN :- Black stone on cooking platform and black stone sink will be provided . Glazed tiles will be fixed up to 3’ ft. height from the cooking platform . Standard bib cock at the sink and another at the bottom of the sink with one aqua guard point will be provided .
- TOILET : - Designed glazed tiles on the wall to provided up to 6’ ft. height . Western type white commode with white PVC cistern in one and white Indian type Pan and white PVC cistern in other toilet . One white basin at dining space . One hot & cold water line will be provided in one toilet only . One tap water point , one shower point and one tap near the commode or pan will be provided in both the toilets .
- WATER SUPPLY :- 24 hours water supply round the clock is assured to which necessary Deep Tube Well with submersible pump will be installed .
- WALL : - Outer wall 8” / 5” thick with plastering . Inside wall 3” thick with plastering .
- ELECTRIC :-
1. In bed rooms : 1 Fan point , 2 light points and One 5 AMP plug point .
2. Living cum dining : 2 Fan points , 2 light points , One 16 AMP plug point for washing Machine , 1 T.V. point and cable point .
3. Kitchen : 1 exhaust Fan point or 1 chimney point , One 16 AMP plug point for aqua guard , 1 light point .
4. Toilet : 1 exhaust Fan point , 1 light point .
5. Balcony : 1 light point .
6. 1 calling bell point outside the main entrance of the flat .
7. 1 AC in Master bedroom .
- PAINTING & FINISHING :- Inside of the flats will be plaster of Paris finish and exterior of the building will be snowcem and front of the building will be weather coat finish . Grills will be painted with synthetic enamel paint . Inside wall will be painting with plaster of Paris / Putty . Common passage of the building passage will be neat cement .
- ELEVATOR : - 4 passengers lift of reputed co. will be provided .
- COMMON LIGHTING :- Overhead illumination for front side of the building and PL lamps at the main landing of each floor , main entrance , common passage and outside of the building will be provided .
|
Airport 1 No. Gate Site Plan
Click Image For Enlarge View
 |
|
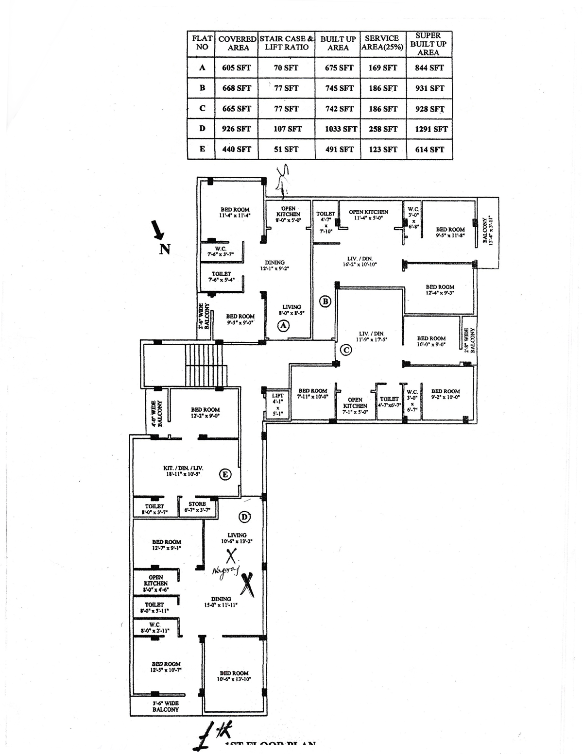
Overview
No. of Floor : - -
| Unit Size |
BHK |
Rate |
Facing |
| 614 sq ft |
1 |
3200/- |
East |
| 844 sq ft |
3 |
3200/- |
North – West |
| 928 sq ft |
3 |
3200/- |
North – West |
| 773 sq ft |
2 |
3200/- |
East |
| 844 sq ft |
2 |
3200/- |
South - East |
| 1015 sq ft |
2 |
3200/- |
South - West |
*Car park & visitor's car parking also available .
|
|
|
The above amenities and specifications are tentative and may be changed or modified at the sole discretion of the developer . The plans shown are only indicative and subject to variation and modification by the developer .
|
|