Project at Sinthee
SHAMBO
Address : -70 , Bidhan Park , Kolkata - 700090 |
Location
To live in an almost pollution free area you have to come to Bidhan Park near Sinthee with decorated pond ; play ground ; swimming pool and with all facilities. |
| Completion Time : - Ready to Move. |
|
|
SPECIFICATION : -
- FOUNDATION : - R.C.C. Column Foundation ( 1 : 2 : 4 ) .
-
NATURE OF CONSTRUCTION :- R.C.C. Column Structure .
- ROOF FINISH :- R.C.C. Roof Slab ( 1 : 2 : 4 ) .
- DOOR AND WINDOWS :- All Door frames would be made of Sal Wood and Main Door will be Sagun Door with Polish finish and all other Doors will be standard Commercial ply fitted flush Door with polish finish . All windows would be made of Aluminum channel with grill fittings with glass panels .
- FLOORING : - All Bed rooms , dining , drawing , toilets and kitchen floors would be Marble / Tiles furnished and walls of the toilets would have 72” high glazed tiles .
- SANITARY AND PLUMBING :- Common Toilet would be of matching size shower and would be fitted with one European Commode ( white standard quality ) with law or high P.V.C. cistern .
- KITCHEN : - One Granite top cooking platform with cylinder space on bottom , one Steel Sink , 2’.5” skirting made of tiles on the top of the cooking platform .
- WALLS : - 8” good equality brick external wall and 5” or 3” internally as per partition wall .
- ELECTRICAL WIRING:-
Concealed wiring in all flats , each flat will be provided with following electric points .
BED ROOMS :- 2 Light points , 1 Fan point , 1 Plug point ( 5 Amp ) .
DINING / DRAWING :- 2 Light point , 2 Plug point ( 15 Amp ) .
KITCHEN :- 1 Light point , 1 Exhaust Fan point , 1 Plug point ( 15 Amp ) .
TOILET :- 1 Light point , 1 Exhaust Fan point .
VERANDSH :- 1 Light point .
ENTRANCE : - 1 Door Bell point ; 1 light point .
DINING OR TOILET :- One White porcelain Basin ( Standard ) .
- WATER SUPPLY : - Overhead water tank attached with connection of Deep Tube Well ( P.V.C. ) with Sub-marshal pump ( 2 H.P. ) and Municipality water connection .
- PAINTING :- All inside of the room and common areas of the building paint with plaster of paris .
Outside wall will finish by Weather Coat after cement wash.
VERRANDAH GRILLS :- S. S. Railing up-to 3’-0” .
- LIFT : - Lift will be provided of standard quality .
|
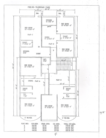
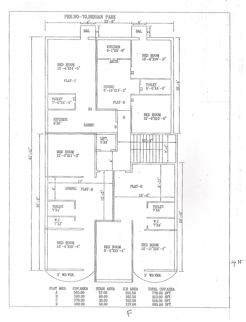
Shambo Site Plan
Click Image For Enlarge View
\ |
|
Overview
No. of Floor : - G+4 single Building .
| Unit Size |
BHK |
Rate |
Facing |
| 813 sq ft |
2 |
3400/-- |
North - East |
| 685 sq ft |
2 |
3200/- |
North - West |
| 518 sq ft |
1 |
3200/- |
South - West |
Garage 6,50,000/- |
|
| |
The above amenities and specifications are tentative and may be changed or modified at the sole discretion of the developer . The plans shown are only indicative and subject to variation and modification by the developer .
|
|